

|
№ |
A, мм |
A1, мм |
A2, мм |
C, мм |
C1, мм |
C2, мм |
D, мм |
D1, мм |
L, мм |
H, мм |
B, мм |
a1, мм |
a2, мм |
|
6,3 |
410 |
366 |
285 |
236 |
610 |
330 |
418 |
460 |
945 |
922 |
1061 |
315 |
240 |
|
8 |
520 |
450 |
354 |
299 |
610 |
330 |
530 |
570 |
1220 |
1168 |
1333 |
400 |
300 |
|
9 |
585 |
500 |
388 |
318 |
610 |
330 |
530 |
570 |
1258 |
1318 |
1485 |
450 |
338 |
|
10 |
620 |
572 |
438 |
336 |
610 |
330 |
667 |
702 |
1360 |
1483 |
1616 |
512 |
375 |
|
11,2 |
694 |
710 |
475 |
367 |
760 |
565 |
667 |
702 |
1570 |
1686 |
1869 |
630 |
430 |
|
12,5 |
816 |
675 |
520 |
333 |
760 |
565 |
836 |
870 |
1780 |
1876 |
2068 |
625 |
470 |
|
13 |
816 |
675 |
630 |
368 |
760 |
565 |
836 |
870 |
2057 |
1876 |
2068 |
625 |
580 |
|
№ |
d, мм |
d1, мм |
h, мм |
h1, мм |
n, шт. |
n1, шт. |
n3, шт. |
n4, шт. |
t1, шт. |
t2, шт. |
l, мм |
|
6,3 |
12 |
15 |
532 |
413 |
12 |
12 |
3 |
3 |
122 |
95 |
328 |
|
8 |
14 |
15 |
582 |
523 |
12 |
16 |
5 |
3 |
90 |
118 |
510 |
|
9 |
14 |
15 |
582 |
593 |
12 |
18 |
5 |
4 |
100 |
97 |
529 |
|
10 |
14 |
15 |
600 |
700 |
12 |
28 |
9 |
5 |
64 |
88 |
548 |
|
11,2 |
14 |
15 |
700 |
784 |
12 |
34 |
10 |
7 |
71 |
68 |
575 |
|
12,5 |
14 |
15 |
730 |
867 |
16 |
20 |
5 |
5 |
135 |
104 |
698 |
|
13 |
14 |
15 |
760 |
867 |
16 |
38 |
9 |
10 |
75 |
63 |
750 |
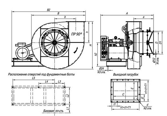
Габаритные и присоединительные размеры тягодутьевых машин типа ВДН и ДН №6,3-13 исп-3

|
№ |
Amax |
a |
B |
b |
D |
D1 |
d |
H |
h |
h1 |
C |
|
6,3 |
1551 |
330 |
1057 |
409,5 |
418 |
460 |
12 |
926 |
413 |
532 |
315 |
|
8 |
1930 |
487 |
1329 |
520 |
530 |
570 |
12 |
1172 |
523 |
580 |
400 |
|
9 |
2099 |
508 |
1490 |
585 |
530 |
570 |
14 |
1322 |
593 |
580 |
450 |
|
10 |
2175 |
555 |
1650 |
650 |
660 |
702 |
14 |
1473 |
663 |
600 |
500 |
|
11,2 |
2554 |
577 |
1843 |
728 |
660 |
702 |
14 |
1655 |
748 |
700 |
560 |
|
12,5 |
2825 |
671 |
2051 |
812,5 |
830 |
875 |
14 |
1849 |
838 |
730 |
625 |
|
13 |
3072 |
717 |
2051 |
812,5 |
830 |
875 |
14 |
1849 |
838 |
760 |
625 |
|
№ машины |
E |
L1 |
L2 |
L3 |
t1 |
t2 |
T1 |
T2 |
N |
N2 |
n1 |
n2 |
|
6,3 |
236 |
236 |
460 |
610 |
122 |
95 |
366 |
285 |
8 |
12 |
3 |
3 |
|
8 |
300 |
277 |
500 |
610 |
90 |
118 |
450 |
354 |
12 |
12 |
5 |
3 |
|
9 |
338 |
296 |
530 |
610 |
100 |
97 |
500 |
388 |
12 |
18 |
5 |
4 |
|
10 |
375 |
315 |
550 |
610 |
92 |
85 |
552 |
425 |
12 |
22 |
6 |
5 |
|
11,2 |
420 |
343 |
800 |
760 |
121 |
118 |
605 |
472 |
12 |
18 |
5 |
4 |
|
12,5 |
470 |
368 |
800 |
760 |
135 |
104 |
675 |
520 |
16 |
20 |
5 |
5 |
|
13 |
580 |
368 |
800 |
760 |
75 |
63 |
675 |
630 |
16 |
38 |
9 |
10 |
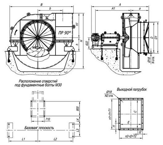
Габаритные и присоединительные размеры тягодутьевых машин типа ВДН и ДН №6,3-13 исп-5

|
№ |
А |
a |
B |
B2 |
b |
D |
D1 |
d |
H |
h |
h1 |
C |
E |
|
6,3 |
1100 |
330 |
1057 |
1468 |
409.5 |
418 |
460 |
12 |
926 |
413 |
532 |
315 |
236 |
|
8 |
1305 |
487 |
1329 |
1812 |
520 |
530 |
570 |
12 |
1172 |
523 |
580 |
400 |
300 |
|
9 |
1465 |
508 |
1490 |
1902 |
585 |
530 |
570 |
14 |
1322 |
593 |
580 |
450 |
338 |
|
10 |
1530 |
555 |
1650 |
2139 |
650 |
660 |
702 |
14 |
1473 |
663 |
600 |
500 |
375 |
|
11,2 |
1815 |
577 |
1843 |
2728 |
728 |
660 |
702 |
14 |
1655 |
748 |
700 |
560 |
420 |
|
12,5 |
1930 |
671 |
2051 |
2845 |
812.5 |
830 |
875 |
14 |
1849 |
838 |
730 |
625 |
470 |
|
13 |
2030 |
717 |
2051 |
2845 |
812.5 |
830 |
875 |
14 |
1849 |
838 |
760 |
625 |
580 |
|
№ машины |
L1 |
L2 |
L3 |
L4 |
L5 |
t1 |
t2 |
T1 |
T2 |
N |
N2 |
N3 |
n1 |
n2 |
|
6,3 |
184 |
450 |
235 |
- |
1075 |
122 |
95 |
366 |
385 |
8 |
12 |
4 |
3 |
3 |
|
8 |
215 |
420 |
245 |
- |
1275 |
90 |
118 |
450 |
354 |
12 |
12 |
4 |
5 |
3 |
|
9 |
296 |
450 |
245 |
393 |
1275 |
100 |
97 |
500 |
388 |
12 |
18 |
5 |
5 |
4 |
|
10 |
315 |
450 |
245 |
450 |
1422 |
92 |
85 |
552 |
425 |
12 |
22 |
5 |
6 |
5 |
|
11,2 |
300 |
650 |
370 |
620 |
990 |
121 |
118 |
605 |
472 |
12 |
18 |
5 |
5 |
4 |
|
12,5 |
326 |
650 |
370 |
620 |
990 |
135 |
104 |
675 |
520 |
16 |
20 |
5 |
5 |
5 |
|
13 |
381 |
650 |
370 |
620 |
990 |
75 |
63 |
675 |
630 |
16 |
38 |
5 |
9 |
10 |
Габаритные и присоединительные размеры тягодутьевых машин типа ВДН и ДН №15 и №17 исп-3

|
№ |
Аmax |
A1 |
a |
B |
b |
D |
H |
h |
|
15 |
2401 |
1506 |
715 |
2537 |
975 |
1500 |
2328 |
1400 |
|
17 |
2463 |
1540 |
743 |
2857 |
1105 |
1700 |
2648 |
1600 |
|
№ маш |
С |
E |
L1 |
L2 |
t1 |
t2 |
T1 |
T2 |
|
15 |
750 |
560 |
674 |
230 |
165 |
160 |
825 |
640 |
|
17 |
850 |
632 |
746 |
228 |
184 |
175 |
920 |
700 |
Габаритные и присоединительные размеры тягодутьевых машин типа ВДН и ДН №19-22 исп-3

|
№ машины |
A |
A1 |
a |
B |
b |
D |
D1 |
H |
h |
h1 |
C |
E |
|
19 |
2974 |
1870 |
924 |
3209 |
1235 |
1245 |
1325 |
2810 |
750 |
1230 |
950 |
707 |
|
21 |
3143 |
1943 |
980 |
3703 |
1365 |
1650 |
1720 |
3041 |
750 |
1340 |
1050 |
780 |
|
22 |
3180 |
1960 |
1000 |
4476 |
1650 |
1650 |
1720 |
3578 |
850 |
1464 |
1540 |
818 |
|
№ машины |
L1 |
L2 |
L3 |
L4 |
t1 |
t2 |
T1 |
T2 |
N |
N2 |
n1 |
n2 |
|
19 |
1437 |
1740 |
600 |
450 |
367,5 |
205 |
1070 |
820 |
16 |
16 |
4 |
4 |
|
21 |
1585 |
1926 |
670 |
448 |
225 |
172 |
1125 |
860 |
12 |
20 |
5 |
5 |
|
22 |
1850 |
2444 |
600 |
500 |
330 |
232,5 |
1650 |
930 |
12 |
18 |
5 |
4 |
Вентиляторы промышленные Тягодутьевые